Beschrijving

Ruime hoekwoning in Leidschenveen met luxe afwerking

Ontdek deze prachtige hoekwoning gelegen aan de Kuifduikerstraat 63 in DEN HAAG. De woning straalt pure luxe uit. Ideaal voor iedereen die op zoek is naar een instapklare woning waar comfort en kwaliteit samenkomen. Ruime voor en achtertuin. 

Elegante Indeling met vier ruime slaapkamers

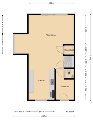
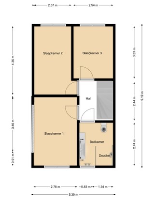
Bij binnenkomst word je verwelkomd in een keurig verzorgde woning met een indrukwekkende indeling. Het huis beschikt over maar liefst vier ruime slaapkamers, waardoor er voldoende ruimte is voor het hele gezin. De badkamer, keuken en toilet zijn recent gerenoveerd, slechts één jaar geleden, wat zorgt voor een moderne en frisse uitstraling.

Inbouw apparatuur in de luxe keuken

De keuken is voorzien van alle benodigde inbouwapparatuur, waardoor koken een waar genot wordt. Quooker, 2 oven/magnetron, elektrisch kookplaat, afzuigkap 
 zijn nieuwe geplaatst en hebben 10 jaar garantie (sinds 2023). De keurig afgewerkte voortuin en achtertuin bieden de perfecte ruimte om te ontspannen en te genieten van het buitenleven. Met een perceeloppervlakte van 181 m2 en een tuin van 81 m2 is er voldoende ruimte om te spelen en te ontspannen.

Ideaal voor iedereen die op zoek is naar een kant-en-klare woning

Deze hoekwoning is ideaal voor iedereen die op zoek is naar een kant-en-klare woning waarin luxe en comfort samenkomen. Gelegen in de populaire wijk Leidschenveen, biedt deze woning alles wat je nodig hebt voor een aangenaam en zorgeloos woongenot. Mis deze unieke kans niet en maak snel een afspraak voor een bezichtiging.

De woning staat te koop voor iedereen die op zoek is naar een luxe hoekwoning in een gewilde wijk Leidschenveen. Aarzel niet en neem vandaag nog contact met ons op om deze prachtige woning te bezichtigen en je droomhuis te vinden!

Woonkamer, is voorzien van een gietvloer met vloerverwarming, 1 jaar oud.

* Hoekwoning
* Keuken, badkamer vloer en toilet 1 jaar geleden gerenoveerd
* 4 slaapkamers
* Ruime voor en achtertuin

Kenmerken