Met een eigen account kun je panden volgen, opslaan als favoriet, je zoekprofiel opslaan en jouw eigen notities bij een huis maken.
Verkocht
Verkocht: Ruime eengezinswoning in rustige en kindvriendelijke buurt.
Norgstraat 61, 2545 TV Den HaagBeschrijving
Sfeervol en duurzaam wonen in MorgenstondZoek je een fijn familiehuis waar alles klopt? Dan is Norgstraat 61 misschien wel de droomplek voor jou en je gezin. In de jonge, levendige wijk Morgenstond vind je dit perfect afgewerkte tussenhuis uit 2009, met energielabel A, volop ruimte én een heerlijke tuin. Lees snel verder, want wonen op deze plek biedt vele voordelen!
Een prettige buurt, gemoedelijk en kindvriendelijk
Morgenstond is een wijk waar het dagelijks leven aangenaam voortkabbelt. De straten zijn rustig, volop gevuld met jonge gezinnen en stelletjes die hun weg hier hebben gevonden. Kinderen kunnen er veilig buitenspelen, terwijl jij buren groet vanaf je voortuin. Winkels, scholen en openbaar vervoer? Alle voorzieningen van betekenis zijn binnen handbereik – wel zo makkelijk! Toch is het hier net wat rustiger dan je misschien gewend bent in Den Haag. Dé perfecte balans voor wie houdt van de stad, maar thuis zoekt naar rust.
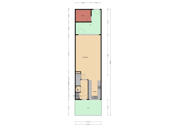
Indeling en oppervlaktes: slim & comfortabel
Deze eengezinswoning is verrassend ruim opgezet op een perceel van 111 vierkante meter. Binnen tref je een lichte woonkamer met open keuken aan, helemaal ingericht om samen te komen na een lange dag. Keuken is voorzien van 4 gaspitten met afzuigkap, oven en een inbouwvaatwasser, alleen van de merk Pelgrim. De moderne keuken biedt voldoende werkruimte voor culinaire experimenten; of je nu samen kookt met vrienden of snel iets op tafel wilt zetten voor het gezin. De slaapvertrekken op de verdieping zijn royaal van formaat en doen absoluut niet onder voor woningen uit hogere prijsklassen. Zo heeft iedereen lekker de eigen plek.
Heerlijk buitenleven: Royale tuin aan voor- én achterzijde
De tuinliefhebbers onder ons kunnen hun hart ophalen. Aan de voorzijde vind je een onderhoudsvriendelijke voortuin – ideaal voor een kop koffie in de ochtendzon. Achter het huis strekt zich een riante tuin uit van maar liefst 43 vierkante meter. Hier is ruimte genoeg voor een sfeervolle loungehoek, speeltoestellen voor de kinderen en een moestuintje. ’s Zomers heb je je eigen stukje vrij buitenleven in de stad; wie wil dat nu niet?
Energiezuinig, comfortabel en modern
Wat deze woning écht bijzonder maakt, zit hem in het onzichtbare comfort. Dankzij maar liefst 11 zonnepanelen op het dak hoef je niet wakker te liggen van torenhoge energierekeningen. In zomer én winter geniet je van een aangenaam binnenklimaat. Energielabel A onderstreept het duurzame karakter van het huis; niet alleen goed voor het milieu, maar óók voor je portemonnee.
Volop luxe en moderne gemakken
Dat het huis relatief jong is (bouwjaar 2009), merk je aan alles: het afwerkingsniveau, de gebruikte materialen en de slimme indeling maken het verschil. Alles is turn-key, oftewel: koffers pakken en verhuizen maar! Luxe details zoals hoogwaardige kozijnen, modern sanitair en een fraaie keuken zorgen voor nét dat beetje extra woonplezier. Je hoeft hier niet te klussen, maar kunt direct genieten.
Parkeren? Geen punt!
Vergeet eindeloos rondjes rijden op zoek naar een parkeerplek. Op Norgstraat 61 parkeer je gewoon op eigen terrein, pal voor de deur. Altijd plek voor de auto, en dat in de stad – een absolute luxe! Vrienden op bezoek? De wijk biedt voldoende parkeergelegenheid, zodat je nooit misgrijpt.
Bereikbaar, groen en gezellig
Of je nu met de auto reist, graag fietst, of liever het OV pakt: de bereikbaarheid van deze plek is echt bovengemiddeld goed te noemen. Binnen enkele minuten rij je naar het centrum van Den Haag, het Zuiderpark of, met een klein beetje doorrijden, het strand. Ook de uitvalswegen zijn vlot bereikbaar. Ondanks al deze verbindingen voelt de wijk zelf intiem en overzichtelijk; je woont hier in een rustige, groene oase binnen de dynamiek van de stad.
Samengevat – Waarom kiezen voor norgstraat 61?
Kortom, zoek je een luxe gezinswoning waar jong en oud zich meteen thuis voelen, in een energievriendelijk huis mét grote tuin en alle nodige voorzieningen nabij? Dan is dit absoluut een buitenkans! Met een top-locatie, moderne afwerking, zonnepanelen, prima bereikbaarheid en voldoende parkeergelegenheid, hoop ik dat je net zo enthousiast raakt als wij. Twijfel niet langer; kom langs, kijk rond en beleef zélf hoe fijn het hier wonen is. Word dit jouw nieuwe thuis?
- Eigen parkeerplaats, afgesloten terrein (VvE: 24,79)
- ruime voor en achtertuin
- Direct te betrekken! Woning is in goede staat
- 4 riante slaapkamers
- Woonkamer met uitbouw (sinds de bouw)
Kenmerken
| Overdracht | |
|---|---|
| Referentienummer | 00065 |
| Vraagprijs | € 549.500,- k.k. |
| Servicekosten | € 24,79 |
| Elektra | € 72,- |
| Gas | € 25,- |
| Water | € 24,- |
| Status | Verkocht |
| Aanvaarding | In overleg |
| Aangeboden sinds | Maandag 12 januari 2026 |
| Laatste wijziging | Zaterdag 21 februari 2026 |
| Bouw | |
|---|---|
| Type object | Woonhuis, eengezinswoning, tussenwoning |
| Soort bouw | Bestaande bouw |
| Bouwperiode | 2009 |
| Dakbedekking | Bitumen |
| Type dak | Platdak |
| Isolatievormen | Dubbel glas HR-glas |
| Oppervlaktes en inhoud | |
|---|---|
| Perceeloppervlakte | 111 m² |
| Woonoppervlakte | 133 m² |
| Woonkameroppervlakte | 41,23 m² |
| Keukenoppervlakte | 9,36 m² |
| Inhoud | 332 m³ |
| Oppervlakte externe bergruimte | 5 m² |
| Indeling | |
|---|---|
| Aantal bouwlagen | 3 |
| Aantal kamers | 5 (waarvan 4 slaapkamers) |
| Aantal badkamers | 1 (en 2 aparte toiletten) |
| Locatie | |
|---|---|
| Ligging | Aan rustige weg In woonwijk Nabij school Nabij winkelcentrum |
| Tuin | |
|---|---|
| Type | Achtertuin |
| Hoofdtuin | Ja |
| Oriëntering | Zuid-west |
| Heeft een achterom | Ja |
| Staat | Prachtig aangelegd |
| Tuin 2 - Type | Voortuin |
| Tuin 2 - Oriëntering | Noord-oost |
| Tuin 2 - Staat | Prachtig aangelegd |
| Energieverbruik | |
|---|---|
| Energielabel | A |
| CV ketel | |
|---|---|
| CV ketel | Intergas |
| Warmtebron | Gas |
| Bouwjaar | 2010 |
| Eigendom | Eigendom |
| Uitrusting | |
|---|---|
| Aantal parkeerplaatsen | 1 |
| Aantal overdekte parkeerplaatsen | 1 |
| Warm water | CV-ketel |
| Verwarmingssysteem | Centrale verwarming |
| Keukenvoorzieningen | Inbouwapparatuur |
| Badkamervoorzieningen | Douche Wastafel Wastafelmeubel |
| Parkeergelegenheid | Parkeerplaats |
| Tuin aanwezig | Ja |
| Heeft schuur/berging | Ja |
| Heeft zonnepanelen | Ja |
| Kadastrale gegevens | |
|---|---|
| Kadastrale aanduiding | "s-Gravenhage AW 3376 |
| Perceeloppervlakte | 111 m² |
| Omvang | Geheel perceel |
| Eigendomsituatie | Erfpacht |
| Lasten | Eeuwigdurend afgekocht |