Met een eigen account kun je panden volgen, opslaan als favoriet, je zoekprofiel opslaan en jouw eigen notities bij een huis maken.
Verkocht
Verkocht: Kuifduikerstraat 63, 2492 PH Den Haag
Beschrijving
Ruime hoekwoning in Leidschenveen met luxe afwerkingOntdek deze prachtige hoekwoning gelegen aan de Kuifduikerstraat 63 in DEN HAAG. De woning straalt pure luxe uit. Ideaal voor iedereen die op zoek is naar een instapklare woning waar comfort en kwaliteit samenkomen. Ruime voor en achtertuin.
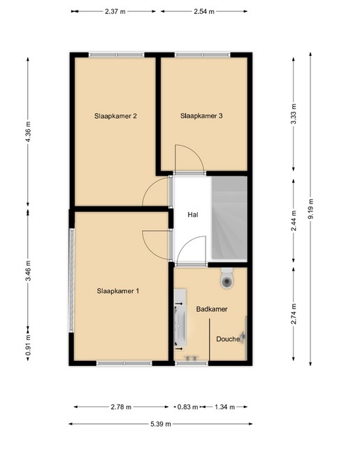
Elegante Indeling met vier ruime slaapkamers
Bij binnenkomst word je verwelkomd in een keurig verzorgde woning met een indrukwekkende indeling. Het huis beschikt over maar liefst vier ruime slaapkamers, waardoor er voldoende ruimte is voor het hele gezin. De badkamer, keuken en toilet zijn recent gerenoveerd, slechts één jaar geleden, wat zorgt voor een moderne en frisse uitstraling.
Inbouw apparatuur in de luxe keuken
De keuken is voorzien van alle benodigde inbouwapparatuur, waardoor koken een waar genot wordt. Quooker, 2 oven/magnetron, elektrisch kookplaat, afzuigkap
zijn nieuwe geplaatst en hebben 10 jaar garantie (sinds 2023). De keurig afgewerkte voortuin en achtertuin bieden de perfecte ruimte om te ontspannen en te genieten van het buitenleven. Met een perceeloppervlakte van 181 m2 en een tuin van 81 m2 is er voldoende ruimte om te spelen en te ontspannen.
Ideaal voor iedereen die op zoek is naar een kant-en-klare woning
Deze hoekwoning is ideaal voor iedereen die op zoek is naar een kant-en-klare woning waarin luxe en comfort samenkomen. Gelegen in de populaire wijk Leidschenveen, biedt deze woning alles wat je nodig hebt voor een aangenaam en zorgeloos woongenot. Mis deze unieke kans niet en maak snel een afspraak voor een bezichtiging.
De woning staat te koop voor iedereen die op zoek is naar een luxe hoekwoning in een gewilde wijk Leidschenveen. Aarzel niet en neem vandaag nog contact met ons op om deze prachtige woning te bezichtigen en je droomhuis te vinden!
Woonkamer, is voorzien van een gietvloer met vloerverwarming, 1 jaar oud.
* Hoekwoning
* Keuken, badkamer vloer en toilet 1 jaar geleden gerenoveerd
* 4 slaapkamers
* Ruime voor en achtertuin
Kenmerken
Overdracht | |
---|---|
Referentienummer | 00054 |
Vraagprijs | € 595.000,- k.k. |
Elektra | € 50,- |
Gas | € 120,- |
Water | € 20,- |
Inrichting | Ja |
Inrichting | Gestoffeerd |
Status | Verkocht |
Aanvaarding | Per woensdag 15 oktober 2025 |
Aangeboden sinds | Maandag 19 mei 2025 |
Laatste wijziging | Donderdag 3 juli 2025 |
Bouw | |
---|---|
Type object | Woonhuis, eengezinswoning, hoekwoning |
Soort bouw | Bestaande bouw |
Bouwperiode | 2000 |
Dakbedekking | Bitumen |
Type dak | Zadeldak |
Keurmerken | Politiekeurmerk |
Isolatievormen | Dubbel glas HR-glas Vloerisolatie |
Oppervlaktes en inhoud | |
---|---|
Perceeloppervlakte | 181 m² |
Woonoppervlakte | 118 m² |
Woonkameroppervlakte | 25,75 m² |
Keukenoppervlakte | 12 m² |
Inhoud | 289 m³ |
Indeling | |
---|---|
Aantal bouwlagen | 3 |
Aantal kamers | 5 (waarvan 4 slaapkamers) |
Aantal badkamers | 1 |
Locatie | |
---|---|
Ligging | Aan rustige weg Aan water |
Tuin | |
---|---|
Type | Voortuin |
Staat | Goed onderhouden |
Tuin 2 - Type | Achtertuin |
Tuin 2 - Hoofdtuin | Ja |
Tuin 2 - Heeft een achterom | Ja |
Tuin 2 - Staat | Goed onderhouden |
Energieverbruik | |
---|---|
Energielabel | A |
Energie-index | 1,85 |
CV ketel | |
---|---|
CV ketel | Remeha |
Warmtebron | Gas |
Bouwjaar | 2011 |
Eigendom | Eigendom |
Uitrusting | |
---|---|
Aantal parkeerplaatsen | 1 |
Warm water | CV-ketel |
Verwarmingssysteem | Centrale verwarming Vloerverwarming (gedeeltelijk) |
Keukenvoorzieningen | Inbouwapparatuur |
Badkamervoorzieningen | Inloopdouche Toilet Wastafel Wastafelmeubel |
Tuin aanwezig | Ja |
Heeft schuur/berging | Ja |
Kadastrale gegevens | |
---|---|
Kadastrale aanduiding | Den Haag H 100 |
Perceeloppervlakte | 172 m² |
Omvang | Geheel perceel |
Eigendomsituatie | Eigen grond |